Confronta gli annunci

Villino in vendita a Colleromano – Roma

€440.000

Descrizione

Siamo lieti di presentare una porzione di villino in vendita a Colleromano, l’esclusivo comprensorio residenziale a soli 10 minuti da Roma Nord.

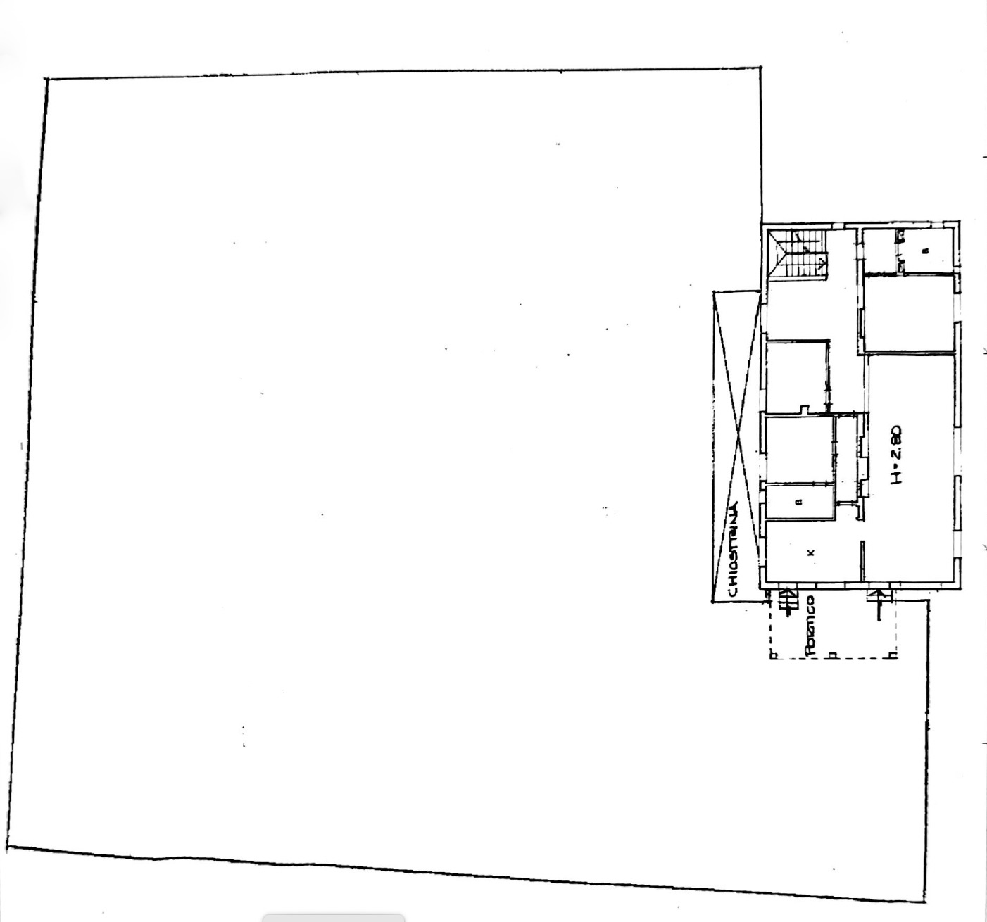
L’unità in vendita si sviluppa sull’intero primo piano di un villino bifamiliare con una superficie di 195 mq e un giardino privato di circa 1.500 mq.

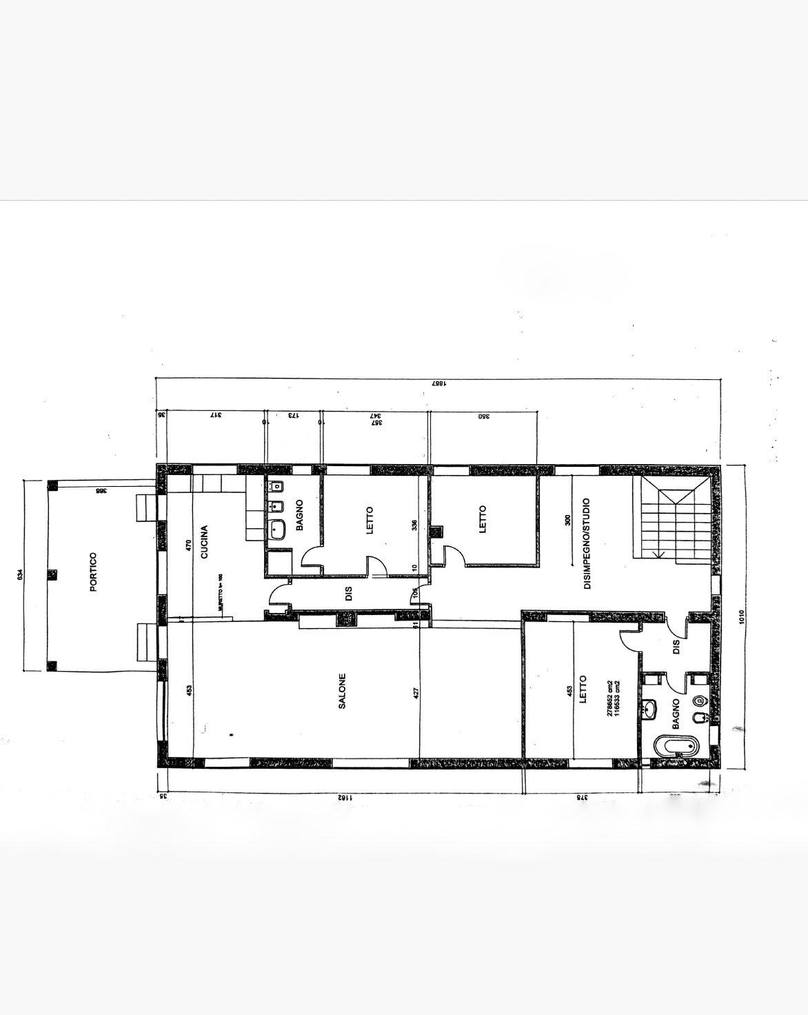
Si accede alla proprietà da un viale in comune con le altre unità per poi arrivare all’ingresso. Da qui con una rampa di scale si giunge nell’appartamento composto da un ingresso con zona studio, un salone triplo con camino e cucina a vista, oltre a una comoda dispensa.

La zona notte è composta da una camera padronale con bagno con vasca, una camera con bagno e una terza cameretta.

All’esterno troviamo un ampio portico che comunica sia con la cucina che con il soggiorno, il giardino, in parte pavimentato e una casetta degli attrezzi. C’è inoltre una cantina, una locale caldaia e un posto auto coperto.

Questa raffinata abitazione offre ambienti luminosi, finiture di pregio e ampi spazi esterni, ideali per chi desidera privacy e relax senza rinunciare alla comodità dei servizi e alla sicurezza garantita dalla portineria h24 e da un servizio di vigilanza notturna.

All’interno del comprensorio di Colleromano, a disposizione dei residenti, c’è anche un centro sportivo con piscina, campo da calcio e campo da tennis.

Per prenotare una visita o ricevere ulteriori informazioni potete contattarci compilando il form accanto o ai seguenti recapiti: M. +39.393.5007403 E. info@colleromanorealestate.it.

 

Dettaglio

Aggiornato su Settembre 28, 2025 a 2:44 pm

  • Prezzo: €440.000
  • Superficie proprietà: 195 mq
  • Area terreno: 1500 mq
  • Camere da letto: 3
  • Bagni: 2
  • Posti auto: 1
  • Anno di costruzione: 1975
  • Tipologia: Villino
  • Contratto: Vendita

Planimetrie

Planimetria Primo Piano

Planimetria posto auto e cantina

Planimetria Lotto

PROPRIETÀ PRECEDENTE

Villino in vendita a Colleromano – Roma

PROSSIMA PROPRIETA'

Villa bifamiliare in vendita a Riano – Roma